PLAN プラン
刈谷市泉田町城前に全4邸の新築戸建てが誕生。
刈谷市泉田町城前に全4邸の新築戸建てが誕生。
B邸
敷地面積
41.31坪(136.57㎡)
延床面積
31.56坪(104.34㎡)
販売価格(税込)
4,940万円
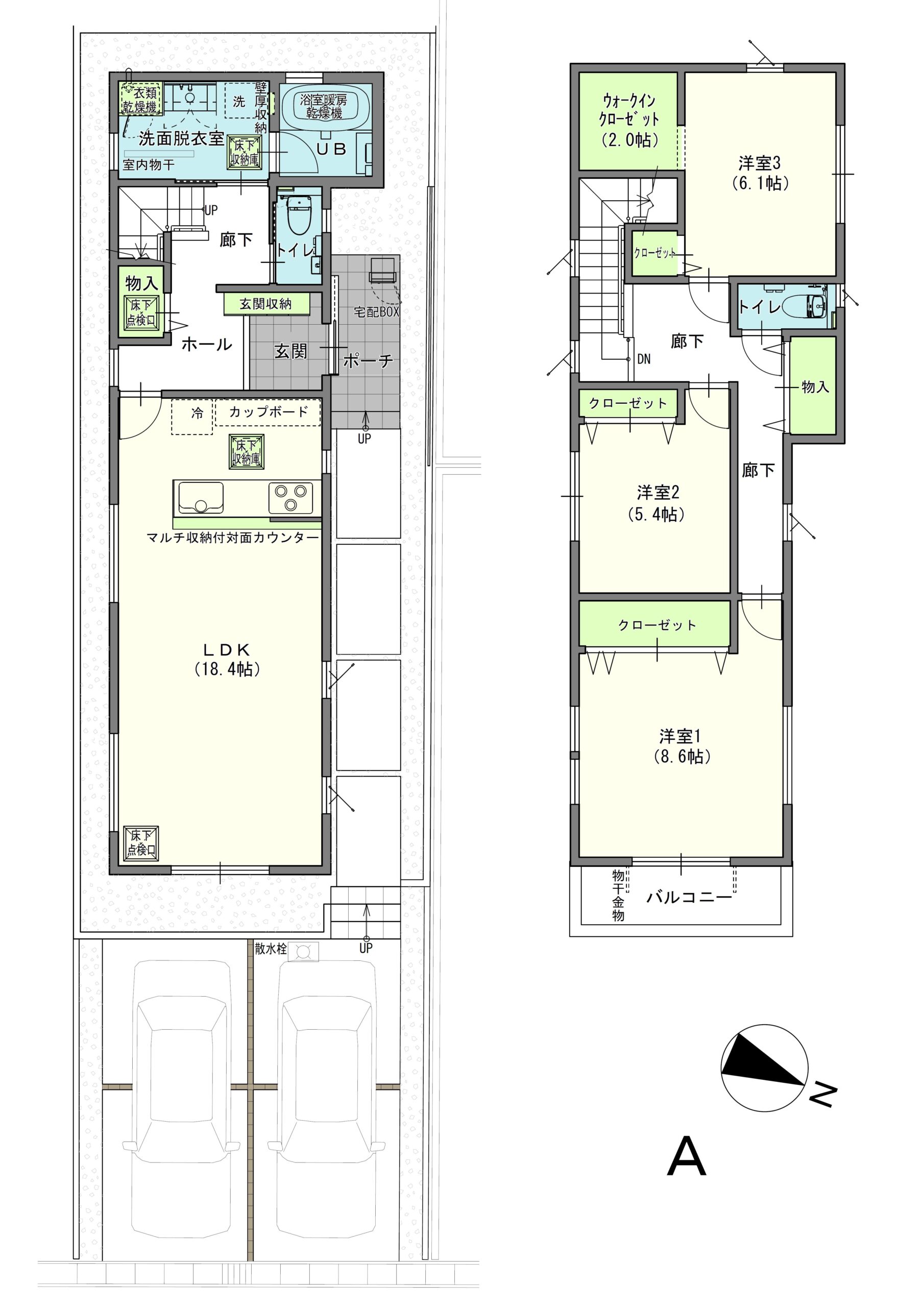
B邸|3LDK
敷地面積:41.31坪(136.57㎡)
延床面積:31.56坪(104.34㎡)
- LDK18.4帖
- 並列駐車2台可能
- ルーフバルコニー
- Wウォークインクロゼット
- LDKエアコン
- 玄関電子錠
- 宅配BOX
- ガス衣類乾燥機
- 浴室暖房乾燥機
- 食器洗い乾燥機
- 1階防犯ガラス
- 洗面物干
- ●長期優良認定住宅
- ●耐震等級3
- ●制振装置MAMORY
- ●省令準耐火構造
※掲載の図面は2025年1月現在の設計段階のものを基に描き起こしたものです。行政官庁の指導、施工上の都合または改良のため、図面等に変更が生じる場合があります。あらかじめご了承ください。
C邸
敷地面積
39.96坪(132.11㎡)
延床面積
32.31坪(106.82㎡)
販売価格(税込)
4,940万円
C邸|4LDK
敷地面積:39.96坪(132.11㎡)
延床面積:32.31坪(106.82㎡)
- LDK18.4帖
- 並列駐車2台可能
- 1階洋室
- ウォークインクローゼット
- LDKエアコン
- 玄関電子錠
- ガス衣類乾燥機
- 宅配BOX
- 浴室暖房乾燥機
- 食器洗い乾燥機
- 1階防犯ガラス
- 洗面物干
- ●長期優良認定住宅
- ●耐震等級3
- ●制振装置MAMORY
- ●省令準耐火構造
※掲載の図面は2025年1月現在の設計段階のものを基に描き起こしたものです。行政官庁の指導、施工上の都合または改良のため、図面等に変更が生じる場合があります。あらかじめご了承ください。
※外観イメージパースはいずれも外構、植栽、外観等実際のものとは多少異なることがあります。
※街区断面概念図は図面を基に簡略化して描き起こしたもので道路の形状、建物の位置関係、サイズ、距離等は実際とは異なります。