1
販売価格 4610万円

PLANプラン

静けさと利便性を両立したエリア。
そんな街であなたらしい新生活を
始めてみませんか?

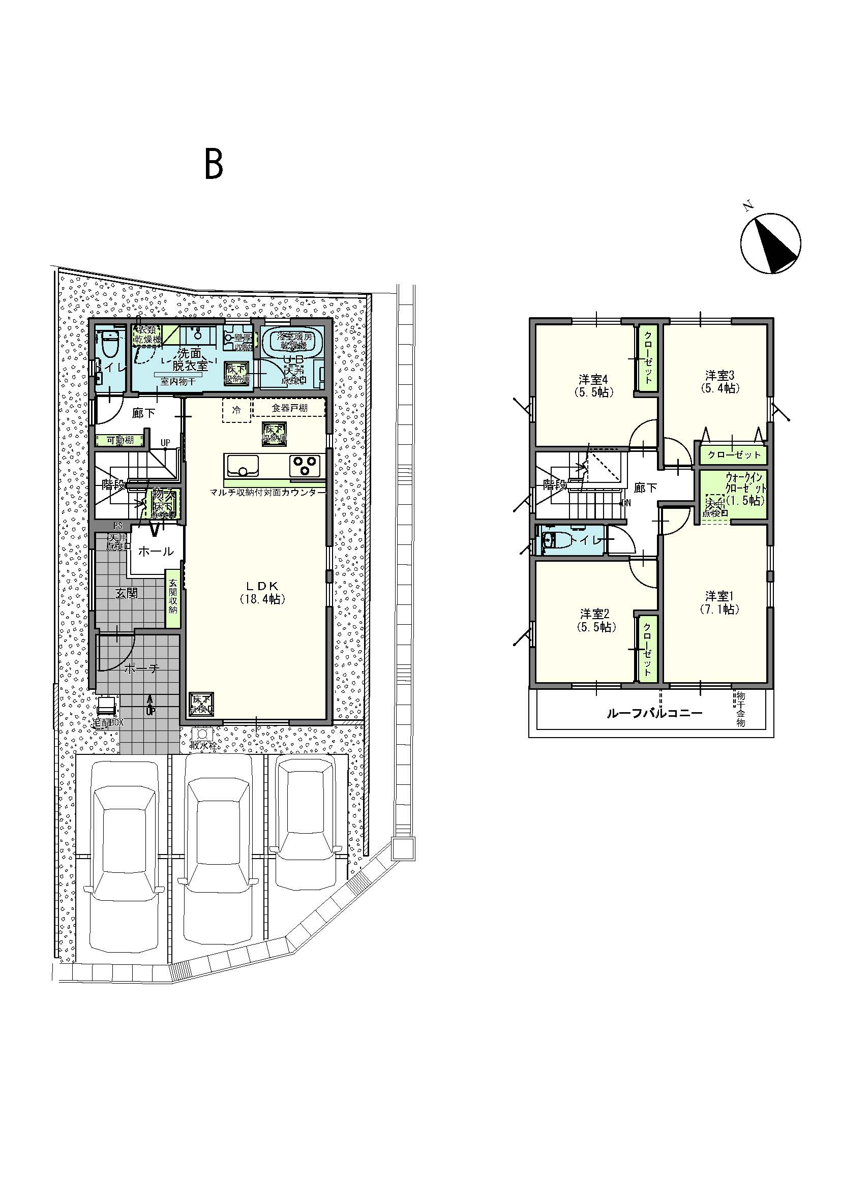
A邸

  • 3LDK+シューズインクローク

    MORE

    LOCATIONアクセス・周辺環境

    閑静でありながら徒歩圏内に多くの生活施設が充実

    様々な生活シーンにマッチする充実の住環境

    生活を彩る医療・商業・教育施設が揃った「利便施設」の数々

    名鉄名古屋本線「富士松」駅 徒歩15分 (約1,200m)

    市立富士松南小学校
    徒歩9分 (約700m)

    イオンタウン
    車5分 (約2,800m)

    泉田歯科医院
    徒歩5分 (約400m)

    アクセス・周辺環境

    ※外観イメージパースはいずれも外構、植栽、外観等実際のものとは多少異なることがあります。
    ※街区断面概念図は図面を基に簡略化して描き起こしたもので道路の形状、建物の位置関係、サイズ、距離等は実際とは異なります。
    ※掲載の写真はイメージまたは参考写真で実際とは異なります。
    ※環境写真は、2025年2月に撮影したものです。

    来場予約

    資料請求